從方案到施工圖,三角形醫療建筑布局創造出高效的醫療體驗-深圳市寶安區婦幼保健院
2021-12-27 作者:admin
深圳市寶安區婦幼保健院
CAPOL華陽國際

隨著寶安區經濟的發展和人口規模的快速增長,寶安區唯一的婦幼保健院日漸不堪重負。2009年,寶安區政府決定新建一座婦幼保健院,以緩解該片區的醫療壓力。因此,新建的寶安區婦幼保健院承擔其管轄范圍內580萬人的醫療需求和婦幼保健重任。


該項目位于灣區核心的寶安中心,被高密度的商住混合用地包圍。在高密度的城市環境和復雜的功能要求下,如何設計出高效的醫療建筑來滿足建筑本身所承載的任務,是設計的一大難點。



CAPOL負責進行從方案到施工圖全過程的建筑設計總承包工作,創造性地采用“緊湊型三角形結構”:以醫療技術部門為核心,門診部將布置在人流較多的城市主干道,住院部是遠離城市主干道和噪音源的。三角形布局形成的最短會診、急救流線和分層掛號系統,創造出了高效的就醫體驗。


設計將庭院綠化、屋頂綠化、入口廣場綠化等分散的景觀系統引入建筑,同時,分散的庭院綠化與醫院交通軸平行,采用退臺式綠化平臺,最大化每層候診空間的采光和綠化景觀,拉近患者與大自然的距離,提升空間感受的豐富性,形成一個平靜和充滿治愈力的建筑空間。


在運營階段,不滿足于固定的功能空間,進一步根據使用需求和技術迭代,對治療方式與治療環境及時更新。
因智能候診室技術的引入,大量的候診室變成了文化展示空間、交流空間和兒童游樂場。功能的轉化不僅使治療程序更加高效,也為醫患帶來了更多的娛樂消遣空間。同時,建筑設計中預留的智能化界面和高效的交通空間也為智能化技術和機器人的引入提供了良好的使用平臺。



在緊湊的城市中心地塊上,深圳市寶安區婦幼保健院不僅為使用者提供愉悅的使用體驗,而且在需求的迭代中保持建筑增長的活力和彈性,為城市提供一座真正的可持續、綠色、智能的醫療建筑。












體塊分析

功能布局分析

流線分析調色

總平面圖

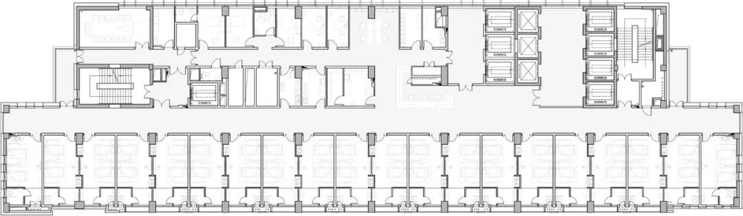
1F-標準層平面

2F-標準層平面

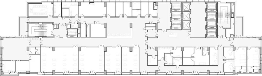
3F-標準層平面

4F-標準層平面

5F-標準層平面

7F-標準層平面

8F-標準層平面

一二次候診分析圖

手術室及分娩室

立面圖


剖面圖



建筑師:CAPOL華陽國際
地點:廣東 深圳
主創建筑師:田曉秋
設計團隊:田曉秋、張勝、徐洪、李炎斌、崔天龍、岳連生、胡勇、劉毅、李勇、趙衛國
結構設計:華陽國際
景觀設計:華城景觀
面積:99486平方米
年份:2015
攝影:邵峰
